Ersatzneubau eines Labor- und Verwaltungsgebäudes für das Umweltbundesamt

>> NEUE ARBEITSWELTEN / INNOVATIV KONSTRUIERT / IM HISTORISCHEN KONTEXT

3. Preis, Beschränkter Wettbewerb

  • Auftraggeber: Bundesamt für Bauwesen und Raumordnung
  • Team: Karsten Ruf, Sandra Töpfer, Laura Pfarr, Samuel Habel
  • Ort: Berlin
  • Planungszeit: 2021

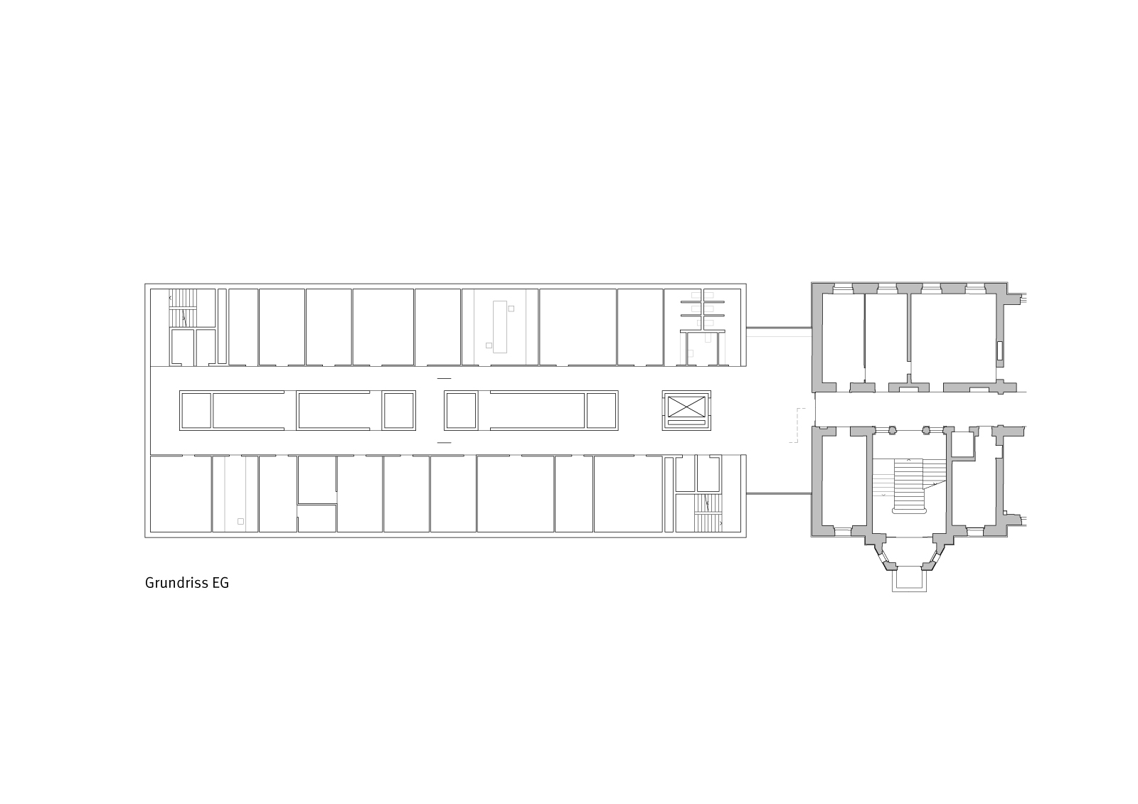
Story Ein Ersatzneubau mit Laboren und Büros soll das unter Denkmalschutz stehende Gebäude in Berlin Dahlem ergänzen. Das Hauptaugenmerk lag dabei auf der Entwicklung eines nachhaltigen Konzeptes mit hohen Anforderungen an ressourceneffizientes Bauen.

Entwurf Der Entwurf orientiert sich in seiner Breite am Mittelrisalit des Bestandsgebäudes. Durch die Ausbildung einer ca. 5m breiten Fuge nimmt der Neubau behutsam Abstand, zeichnet sich aber durch seine moderne Formensprache als neue, kontemporäre Schicht ab. Der Baukörper ist horizontal in drei Teile geteilt. Eine umlaufende Glasfuge auf Eingangsniveau hebt den Baukörper optisch vom Boden ab, lässt Einblicke in das Gebäude zu und öffnet sich so zum Straßenraum. Darauf schwebt ein modularer Aufsatz mit Holzfassade, welcher in seiner Struktur Elemente des Altbaus aufnimmt. Der obere Abschluss führt die Traufhöhe des Bestandsgebäudes weiter. Die leicht zurückgesetzte Dachhaube sitzt oben auf. Sie beherbergt die technischen Anlagen für Lüftung, Rückkühler und Photovoltaik und nimmt sich durch ihre transparente Konstruktionsart als Bauteil klar zurück. Der Zugang für die Mitarbeiter befindet sich in der Gebäudefuge zwischen Alt- und Neubau. Er ist leicht zu finden und sowohl von der Straße als auch vom Hof begehbar. Auch in den oberen Geschossen behält die Fuge eine vermittelnde Funktion. Beidseitig belichtet bildet der Raum einen Kommunikations- und Pausenbereich.

Konstruktion Bis auf das Untergeschoss und die Treppenhauskerne wird auf eine Bauweise in Stahlbeton verzichtet. Die gesamte Primärkonstruktion ist elementiert, kann vorgefertigt und in zügiger Bauweise vor Ort errichtet werden. Für die Fassaden werden selbsttragende Holzrahmenelemente vorgesehen, die mit lasierten Dreischichtplatten aus Holzwerkstoff und Holz verkleidet sind. Die verwendeten Baustoffe zeichnen sich durch einen geringen CO2-Fußabdruck aus und sind durchweg rückbau- und recyclebar.

Ersatzneubau eines Labor- und Verwaltungsgebäudes für das Umweltbundesamt
Ersatzneubau eines Labor- und Verwaltungsgebäudes für das Umweltbundesamt
Ersatzneubau eines Labor- und Verwaltungsgebäudes für das Umweltbundesamt
Ersatzneubau eines Labor- und Verwaltungsgebäudes für das Umweltbundesamt